Bratislava D.N.V. - 3i byt na predaj.
REZERVOVANÝ!
239 000 €

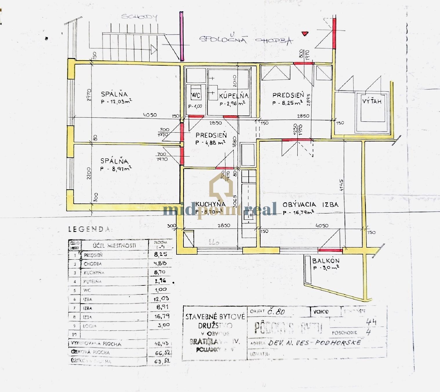
Ponúkame na predaj útulný, priestranný 3 izbový byt v Bratislave - Devínska Nová Ves, na ulici Pavla Horova. Byt sa nachádza vo vyhľadávanej lokalite, slepej ulici mimo hlavnej cesty s výhľadom na Sandberg. Celková rozloha bytu je 66,52 m2 z toho 63,52 m2 tvorí obytnú plochu bytu. K bytu taktiež prislúcha loggia s výmerou 3 m2, pivničná kobka o výmere 3 m2. Veľkým benefitom tohto bytového domu je súkromná posilňovňa situovaná v pivničných priestoroch a taktiež oddychová miestnosť/kuchynka na posedenie pri kávičke. Bezplatné verejné parkovanie je priamo pred bytovým domom. Byt sa nachádza na 4/12 poschodí s bezbarierovým vstupom do bytu. Byt prešiel kompletnou rekoštrukciou v rozmedzí 2010-2015. Mesačné náklady sú cca do 200,-/mes. na 2 os. Byt je a vkusne zariadený, veľmi dobre dispozične riešený slnečný a priestranný. 

 

Kompletná rekoštrukcia bytu: plastové okná, murované jadro, plavajúce podlahy, interiérové dvere a obložky na mieru (drevo), kuchynská linka na mieru. 

Rekoštrukcia bytového domu (2020): komletne vymenené stupačky, rozvody vody, odpadu, zateplenie BD, nová fasáda, strecha, vchodové dvere do BD, el.vrátnik, spoločné priestory, vo vchode sú k dispozícii 2 nové výťahy ( 4os a 8osôb.), bezbariérový vstup do BD.

 

Dispozičné riešenie:

vstupná chodba, obývacia miestnosť so vstupon na loggiu, kuchyňa, kúpeľňa s vaňou, samostatné WC, spálňa, pracovňa.

 

Výhody: 

- tiché prostredie (mimo hlavnej cesty)
- len 10min. od centra hl. mesta Bratislava 
- len 3min. pešo do centra Devínska Nová Ves
- kompletná občianska vybavenosť: obecný úrad, obchody, škola, škôlka, pošta, zastávka autobusu, potraviny, reštaurácia, pizzéria, pohostinstvo.
- workoutové ihrisko, detské ihrisko, footbalové ihrisko priamo pod bytovým domom.
 

Tip makléra:

Byt je zariadený bez ďalších ivestícii. Ideálny na trvalé bývanie, či ako investičný byt na následný prenájom bytu. Nakoľko je byt situovaný s bezbariérovým vstupom je vhodný i pre starších občanov či ludí so zdravotným obmedzením. Byt je situovaný v slepej ulici, čo zaručuje súkromie, nízku prašnosť a hlučnosť áut.

 

 

V cene je zahrnuté:

- provízia realitnej kancelárie
- kompletný právny servis
- vypracovanie rezervačnej zmluvy
- vypracovanie kúpno-predajnej zmluvy
- vypracovanie návrhu na vklad -poplatok za vklad vlastníckeho práva
- poplatok za overenie podpisov
- vybavenie financovania akoukoľvek bankou
- promptnejšie vybavenie znaleckých posudkov a geodeta
- poistenie nehnuteľnosti, poistenie úveru

 
Potrebujete rýchlo predať rodinný dom, byt, pozemok, garáž, chatku, chalupu alebo záhradu? Ponúknite nám nehnuteľnosť a my ju od Vás vieme pohotovo odkúpiť! Všetky informácie Vám rád zodpoviem na tel. 0918 686 910/mail. selc@midpointreal.sk.

Cena 239 000 €
Lokalita Bratislava - Devínska Nová Ves
Ulica Pavla Horova
Stav nehnuteľnosti Kompletná rekonštrukcia
Rozloha 66 m2
© MIDPOINT REAL, s.r.o. 2026